RETAIL
Pure as ice
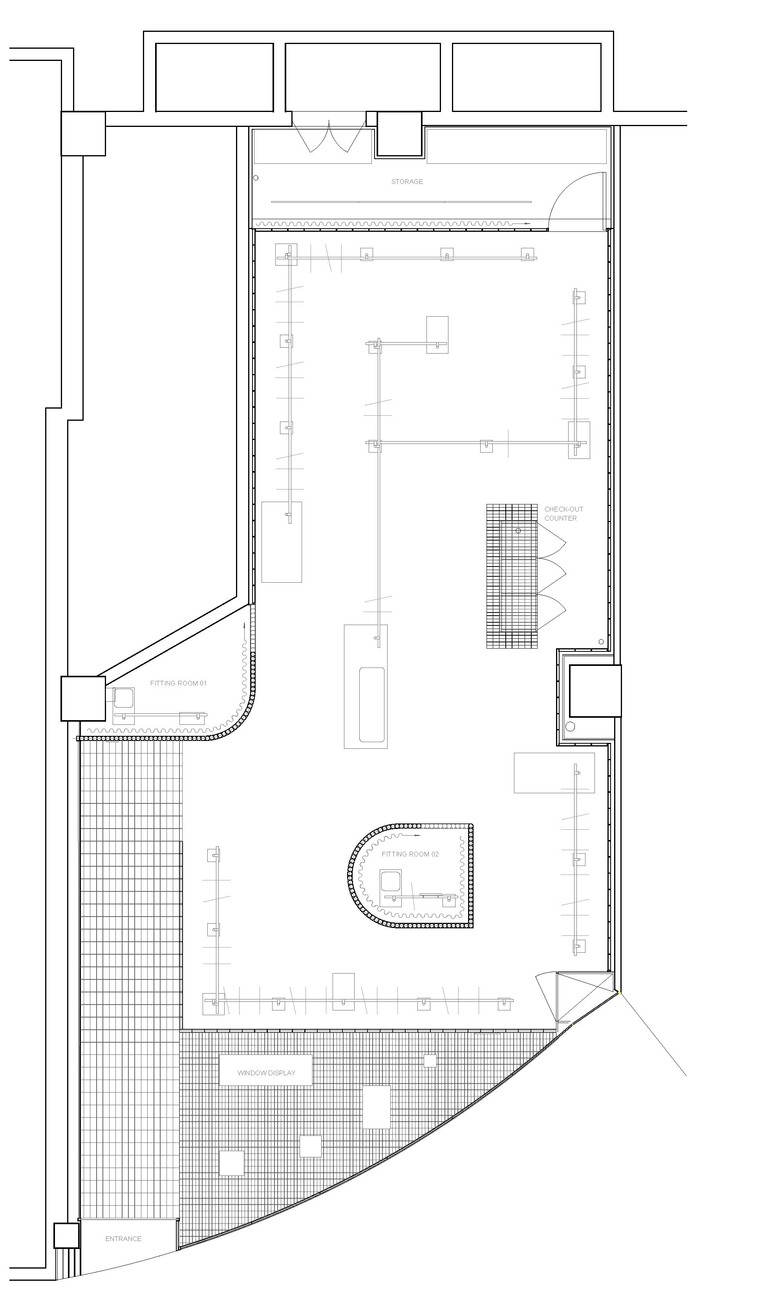
Transparency, reflection and contrast between the materials await customers of the Geijoeng Concept Store in Shenzhen: In keeping with the label’s brilliant white logo, the store’s interior boasts a cool atmosphere that almost appears to be built of ice. The entrance corridor and the display windows are paved with glass bricks, while extensive mirrored surfaces reflect the cool lighting of the neon tubes. The examples of fine clothing by Chinese fashion label Geijoeng, incorporating nude tones in silk or cashmere, hang from frosted acrylic rails, and the store’s clean atmosphere is representative of the label’s minimalist style. Metal braces from the structural framework flow into plinths of various sizes made of dark green marble, while grey-green floor panels and large white pieces of marble form an oversized terrazzo that makes up the floor. The multi-mirrored surfaces and the open ceiling make the dimensions of this 120-square-meter shop floor hard to gauge – the boundaries blur like in a hall of mirrors, and it’s easy to become lost in this stage set, which represents a calm haven within the bustling Coastal City shopping and office complex.
If you wish to try on an item of clothing, cubicles behind curved acrylic walls serve as fitting rooms, with privacy ensured within these oval-shaped booths by a curtain made of green velvet from Kvadrat. Indirect lighting radiating from the floor into the acrylic glass and onto the mirrored surfaces combines with spotlights to present the installation to optimum effect. Meanwhile, transactions take place at a sales counter made of glass bricks, on top of which the black computer monitors seem to come from another world. Publicity posters, decorations and conspicuous brand logos have no place in this modern crystal palace – only the label’s symbol, an eternal knot, is displayed in discreet grey on the walls of the store.























